RESTRUCTURATION ET EXTENSION DU U EXPRESS HAUTE GOULAINE
Restructuration et extension du U Express de Haute-Goulaine
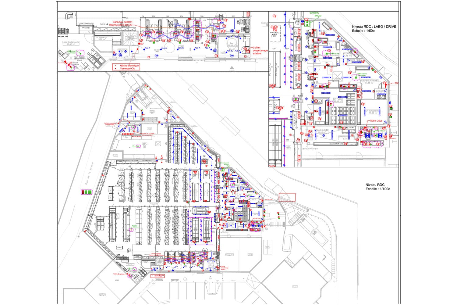
Le projet consiste à l’extension et réaménagement du magasin U Express existant sur la commune de Haute Goulaine.
Les travaux réalisés comprennent :
- Dépose des installations
- Remplacement des éclairages
- Alimentations électriques des différents postes de travail suivant réaménagement du magasin (frigo, chambres froides, bac de libre-service, étalages…)
- Chauffage électrique dont Panneau rayonnant pour le drive et Aérothermes électriques pour les réserves et réserve drive ave programmateur à chaque zone.
- Le bâtiment sera équipé d’une alarme incendie type 1 avec l’ensemble des équipements associés (Déclencheur manuel, dispositif sonore, diffuseur lumineux…)
- Mise en place de Détection Automatique Multi-Ponctuelle
- Mise en place de Détecteur Autonome Déclencheur
- Création d’une nouvelle baie VDI 42U
- Extension du système de sonorisation existant
Informations complémentaires :
- Architecte : FAUN
- Maitre d’ouvrage : SARL LAVENO
- Mission Maitre d’œuvre : Mission de Base, Mission de Coordination SSI
- Durée des travaux : 12 mois
- Année : En cours, livraison prévue pour septembre 2024


